FIRM erstad Architects

LOCATION US Highway 93 Jerome Idaho

PROGRAM Industrial + Employee Support Facility

YEAR 2021

SQUARE FEET 12,000 Sq. Ft.

STORIES 1 Stories

POSITION Architecture in Training

ROLE 3D Renderings / Interior Assistance / Drafter

SOFTWARE Revit / Lumion / Photoshop

PHASE Design Development
Construction Document

11/08

True West Beef

A place for employee to reset.

DESCRIPTION

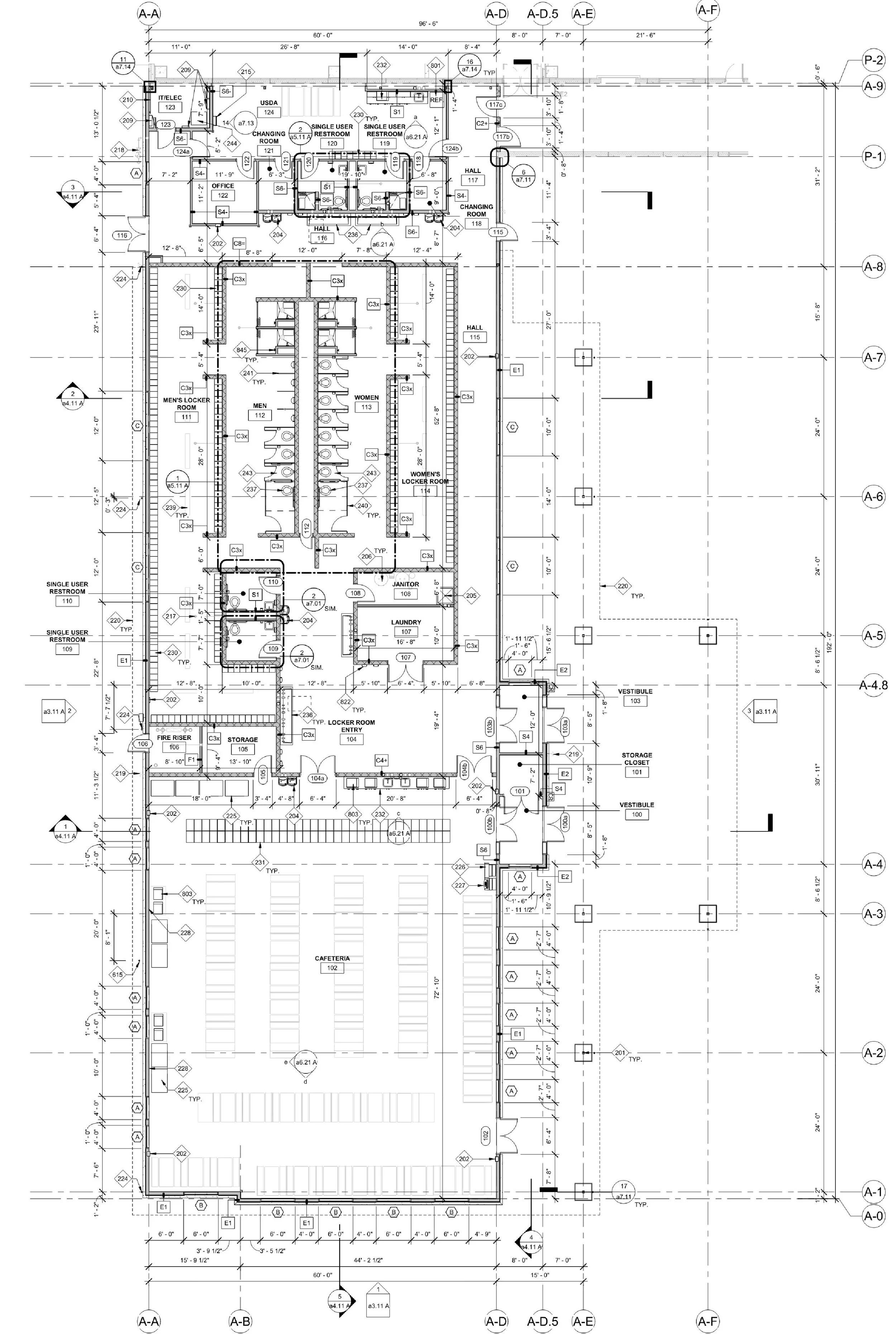
The welfare buildings support employee and USDA staff with locker rooms, restrooms, cafeteria space, offices, and training rooms. I assisted with construction documentation, code review, and coordination notes, gaining experience with circulation planning, life-safety requirements, and technical detailing.

FLOOR PLAN

01 / West Wing Floor Plan

01 /


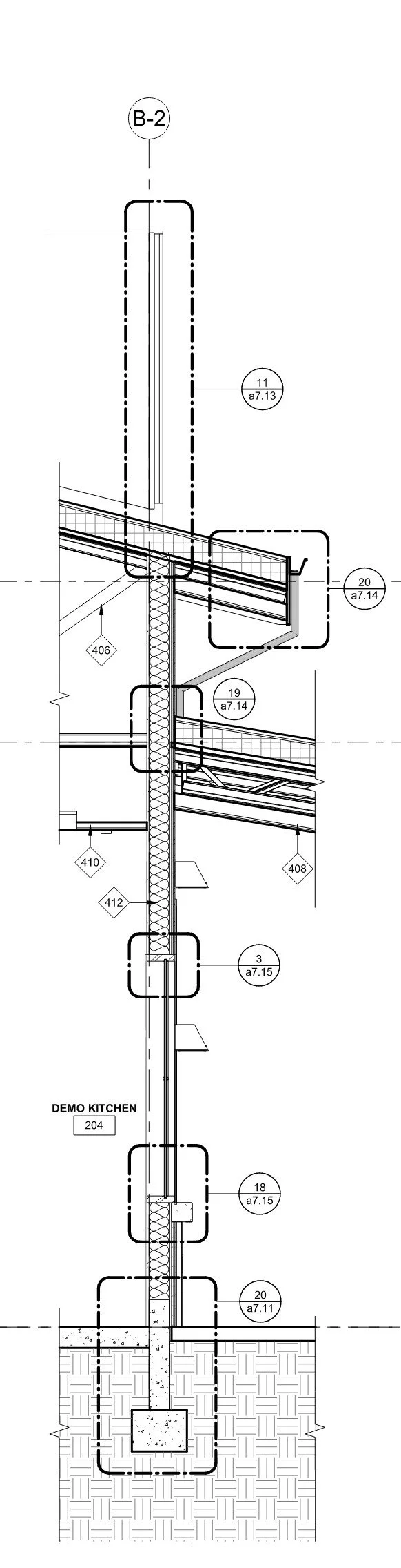
WALL SECTION AND DETAILS

01 / Wall Section
02 / Metal Roof @ Head Wall
03 / Metal Roof Gutter @ Eave
04 / Window Head @ Board and Batten
05 / Window Sill @ Stone Veneer

01 /

03 /

04 /


02 /

04 /

RENDERING TO COMPLETION

01 / Courtyard Rendering
02 / Courtyard Construction Completion
03 / Completed Conference Room
04 / Completed Lobby

01 /

03 /

02 /

04 /