COURSE Thesis

INSTRUCTOR Diego Romero Evans

SITE LOCATION Boise, Idaho.

SOFTWARE Revit / Enscape / Photoshop / Illustrator

YEAR Fall | 2024 — Spring | 2025

11/01

Companion Haven

Design community across species.

STATEMENT

Companion Haven re-imagines the animal shelter architectural typology as a multi-species performative system. It challenges anthropocentric norms by fostering spatial and sensory connections among human and non-human species. Situated within the Boise River watershed, the project engages the temporal rhythms of a dynamic riverine ecosystem, integrating seasonal design strategies for both flooding and drought conditions. Through cross-species programming, habitat-responsive site design, and community-oriented spaces, the proposal advances architecture as an adaptive infrastructure. It supports interspecies coexistence, environmental literacy, and shared use across shifting climatic and ecological conditions.

SITE INFORMATION

Address 3380 W Americanan Terrace
Boise, ID, 83706

Zoning MX-3 (Mixed Use: Active)

Sensitive Lands FP-O (Flood Protection)
BR-O (Boise River System)

REASON FOR CHOOSING THE SITE

Boise is a rapidly growing city, making it an ideal location for Companion Haven. The site is centrally located, connecting Boise’s downtown area and nearby neighborhoods.
It is adjacent to the Boise Greenbelt, a key feature in the heart of the city The Greenbelt is a popular destination where locals come to walk, relax, and enjoy their day.
The location ensures high visibility and easy access for the community to engage with the shelter’s programs and animals.


SITE ANALYSIS

01 / Existing Path Study
02 / Area Study
03 / Sun Path + Wind Rose
04 / Road and River Path
05 / Buildings
06 / Road
07 / Vegetation
08 / Boise River
09 / Vicinity Map of the Site


01 /

Step 1

Step 2

Step 3

Step 4

Building Elevation

02 /

Connection With Nature

Building Elevation

Section 1. Building ‘B’

Section 2. Bridge

Section 3. Building ‘A’

03 /

Axonometric Flood Plain

Flood Plain Elevation

Section 1. Building ‘B’

Section 2. Bridge

Section 3. Building ‘A’

DESIGN DEVELOPMENTS

01 / Building Design Diagram
02 / Section Diagram
03 / Flood Plain Diagram


01 /

02 /

03 /

04 /

DESIGN DEVELOPMENTS

01 / Early Design Sketch
02 / Path Way Fixture
03 / Searing/Stair to River
04 / Pedestrian Path Fixture


100-Year Flood Zone = 1% Annual Chance

Typical Flood Plain

BOISE RIVER FLOOD PLAIN

The dry pathway to the building is supported by columns that serve more than a structural purpose. Each column is designed to support pollinator-friendly plantings, helping to strengthen the local ecosystem. Some also provide built-in seating, offering shaded resting spots for visitors moving through the site. Together, these elements turn a functional path into a living, interactive experience that supports both people and wildlife.


Step 1.

A single rectangular volume is places across the site, bridging both sides.

Step 2.

Push down edge of each end of divided building to create slope.

Step 3.

Push in the end of the building, Create opening for river and existing pathway.

Step 4.

Create opening for entrances and open to sky.

MASS DESIGN PROGRESS


01 /

02 /

03 /

GREEN BELT PATHWAY DESIGN

01 / Early Design Sketch
02 / Path Way Fixture
03 / Searing/Stair to River
04 / Pedestrian Path Fixture

01 /

02 /

03 /

04 /

DESIGN DEVELOPMENTS

01 / Irrigated Planting
02 / Low-water Planting
03 / Planting Site Plan
04 / Storm-water Managed Planting


01 /

02 /

SITE SECTIONS

01 / West — East Site Section
02 / North — South Site Section

01 /

02 /

03 /

04 /

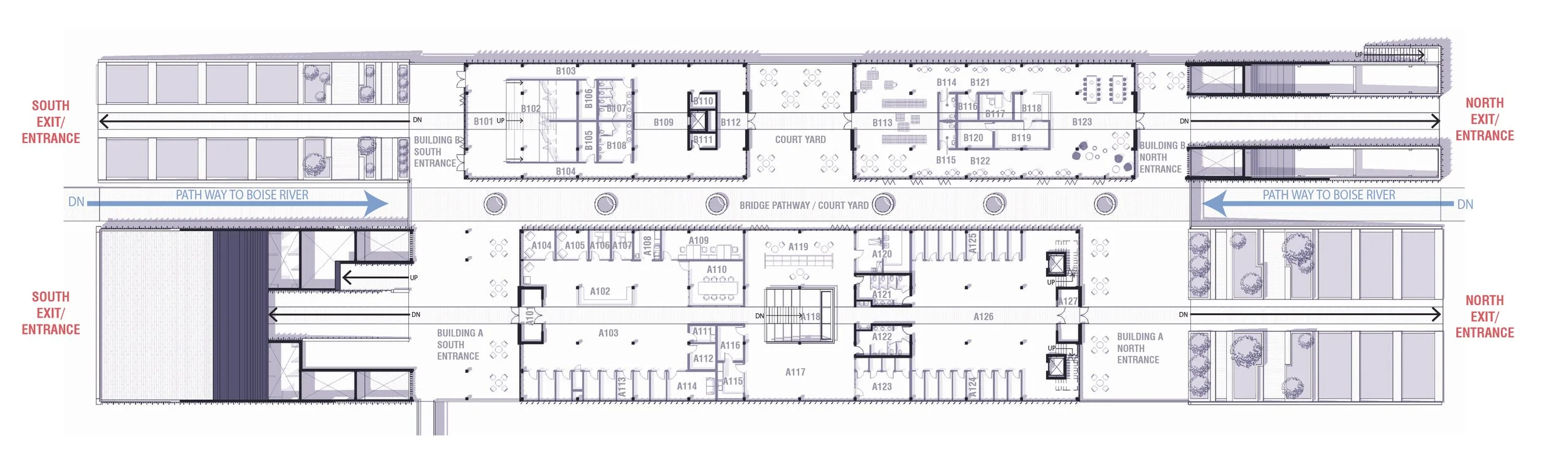
FLOOR PLANS

01 / First Floor Plan
02 / Second Floor Plan
03 / Third Floor Plan
04 / Forth Floor Plan


03 /

02 /

01 /

FLOOR PLANS

01 / First Floor Plan Program
02 / Second Floor Plan Program
03 / Third Floor Plan Program


01 /

02 /

03 /

FLOOR PLANS

01 / Shelter and Community Scenario
02 / Shelter Scenario
03 / Community Scenario

01 /

02 /

03 /

04 /

EXTERIOR ELEVATIONS

01 / West Elevation
02 / East Elevation
03 / South Elevation
04 / North Elevation


01 /

02 /

BUILDING SECTIONS

01 / Building ‘B’ Section
02 / Bridge Section


01 /

02 /

03 /

04 /

BUILDING SECTIONS

01 / Building ‘A’ Section
02 / Building Section - Nature Ventilation
03 / Building Section
04 / Building Section - Skylight Under the Bridge

01 /

02 /

03 /

04 /

PATHWAY DIAGRAM

01 / Egress Pathway
02 / Staff Pathway
03 / Domesticated Animal Pathway
04 / Public/Community Pathway

02 /

03 /

01 /

04 /

05 /

WALL SECTUIB / DETAILS / STRUCTURAL DESIGN

01 / Wall Section
02 / Curtain Wall Assembly
03 / PMR Roof Assembly
04 / Railing and Parapet Wall Assembly
05 / Structural Framing