FIRM erstad Architects

LOCATION 521 E 41 St. Garden City, Idaho.

PROGRAM Apartment

YEAR Spring 2020 - Spring 2021

SQUARE FEET 330,000 Sq. Ft

STORIES 8 Stories

POSITION Architecture in Training

ROLE 3D Renderings / Interior Assistance / Drafter

SOFTWARE Revit / Lumion / Photoshop

PHASE Design Development
Construction Document

11/06

The Boardwalk Apartment

Experience built through practice.

DESCRIPTION

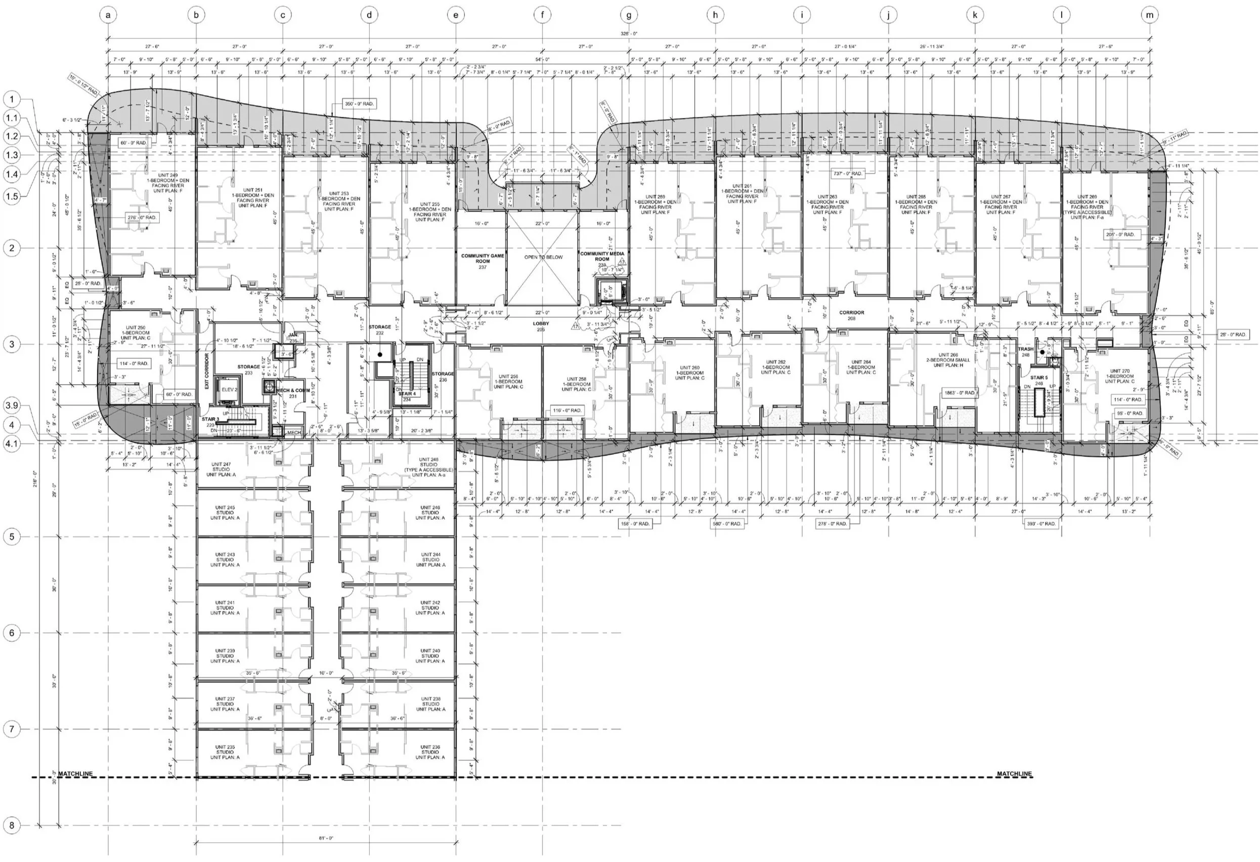
The Boardwalk Apartments is a mixed-use residential community located along the Boise River Greenbelt at 41st Street. Its curved, terraced facades draw inspiration from the river’s natural flow and the striations carved into its banks. The project includes 234 units, underground parking, rooftop jacuzzis, a pickleball court, and six ground-floor restaurants that open directly onto the public boardwalk plaza.

FLOOR PLANS

01 / North Wing Second Floor Plan
02 / South Wing Second Floor Plan

02 /

01 /


RENDERING TO COMPLETION

01 / Corridor Rendering
02 / Corridor Completion
03 / Main Entrance Rendering
04 / Main Entrance Completion

01 /

03 /

02 /

04 /