FIRM LKV Architects

LOCATION 799 West Amity Road, Meridian, Idaho.

PROGRAM Religious / Worship Facility

YEAR 2025

SQUARE FEET 45,800 Sq. Ft.

STORIES 2 Stories

POSITION Architecture in Training

ROLE 3D Renderings / Interior Assistance / Drafter

SOFTWARE Revit / Lumion / Photoshop

PHASE Design Development
Construction Document
Construction Administration

11/09

Stonehill Church New Worship Center

Space for connection and faith.

DESCRIPTION

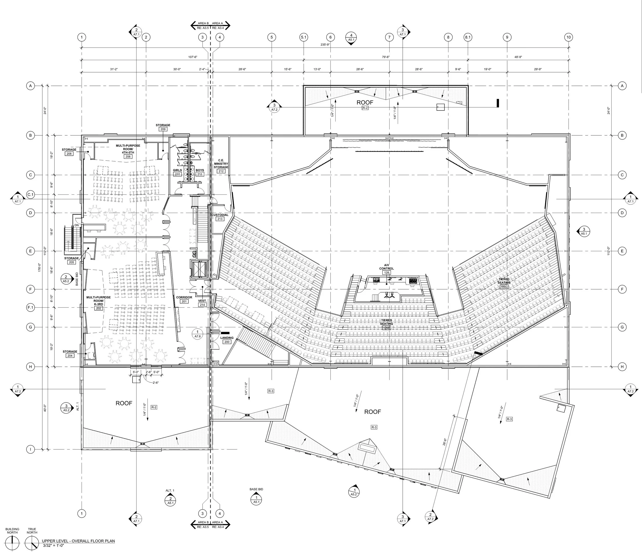
Stonehill Church is a new worship facility designed to serve a growing community, providing sanctuary space, classrooms, and support areas. I supported the construction documentation phase by assisting with plan updates. consultant coordination, and code-related layout checks, gaining experience in detailing, life-safety organization, and clarity in architectural drawings.

01 /

02 /

03 /

FLOOR PLANS + EXTERIOR ELEVATION

01 / Main Floor Plan
02 / Upper Floor Plan
03 / North Elevation


RENDERINGS

01 / Exterior Rendering
02 / Auditorium Rendering
03 / Kid Zone Corridor Rendering
04 / Coffee Bar Rendering

01 /

03 /

02 /

04 /