COURSE

INSTRUCTOR

SITE LOCATION

SOFTWARE

YEAR

Studio 7

Eva Chiu and Antonio Lao

San Francisco, California

Revit / Enscape / Photoshop / Illustrator

Fall | 2024

11/03

Community Nexus

A space for connection and learning.

STATEMENT

Community Nexus is a library and cultural center in San Francisco that serves as more than a place for books. It is designed as a community anchor that fosters inclusivity, cultural appreciation, and safety for children, students, families, and residents, The project balances the density of its urban setting with open, light filled spaces that invite learning and gathering. Programs include story-time and cultural heritage classes for children, study areas for students, multipurpose rooms for families, and flexible community spaces for events. Sustainable strategies such as green roofs, daylighting, and energy efficient systems reinforce its role as a future focused civic space. By prioritizing hub where knowledge and culture strengthen the bonds of a diverse city.

USERS

Race and Culture
San Francisco is home to many racial and ethnic backgrounds. The project will celebrate cultural identity and provide spaces where people can share traditions and learn from one another.

Programs
Cultural & Heritage Workshops
Multilingual Resources
Community Events / Festivals

Family / Single Parents
Families of all types need supportive space that encourage learning, bonding, and everyday support.

Programs
Cooking Classes
Parenting Workshops
Short-term Private Rooms
Family Support Spaces

Children
Children need safe, engaging environments to play, learn, and explore creativity.

Programs
Story time & Reading Activities
Indoor / Outdoor Play Areas
Cultural Activities
Kids Cooking Classes

Students
Students require quiet spaces for academic and collaboration.

Programs
Lecture / Classroom Space
Quiet Study Zones
Group Meeting Rooms
Computer & Technology Access


SITE ANALYSIS

01 / Vicinity Map
02 / Building Mass
03 / Street
04 / Public Resource Network Map
05 / Surrounding Context Map
06 / Transit and Access Map

01 /

03 /

05 /

02 /

04 /

06 /


01 /

SITE AND MASS PROGRAMMING

01 / Mass Programming
02 / Gray Space Design 01
03 / Gray Space Design 02
04 / Site Approach Study
05 / Site Mass and Pathway

02 /

04 /

03 /


05 /

01 /

SUN PATH STUDIES

01 / Spring Time
02 / Fall Time
03 / Summer Time
04 / Winter Time

02 /

04 /

03 /

01 /

03 /

04 /


PLANS

01 / Site Plan
02 / Third Floor Plan
03 / Second Floor Plan
04 / First Floor Plan

02 /

01 /


ELEVATIONS

01 / North Elevation
02 / East Elevation

02 /

01 /


ELEVATIONS

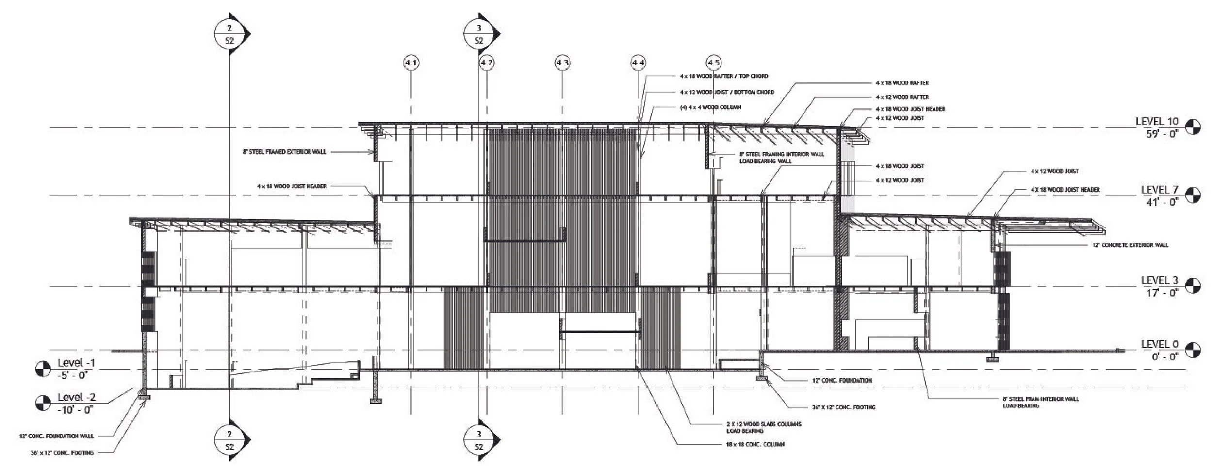
01 / Building Section 01
02 / Building Section 02
03 / Building Section 03

02 /

03 /

02 /

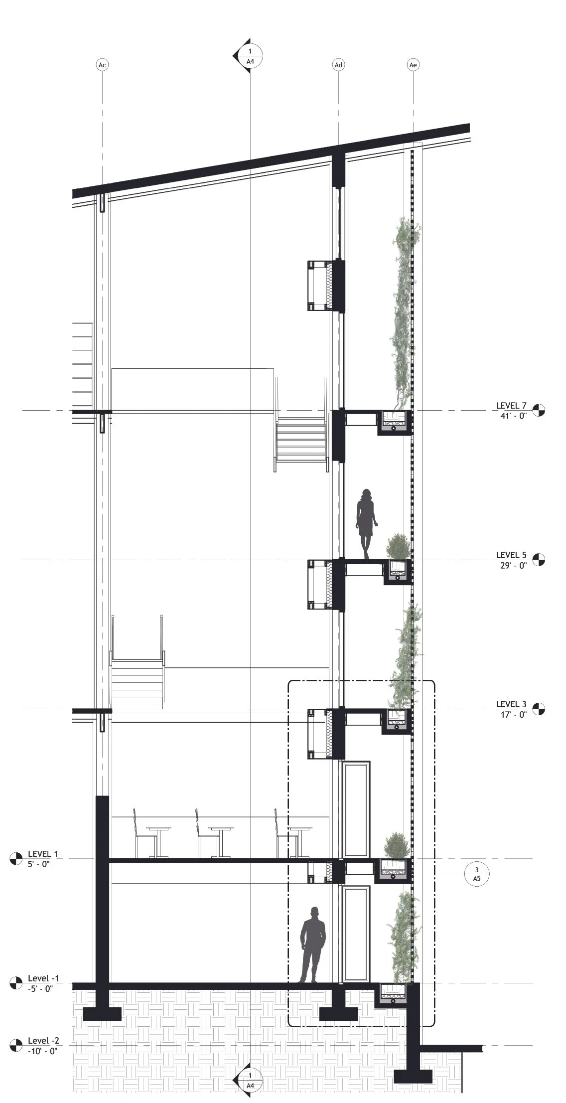
WALL SECTION

01 / Wall Section
02 / Exterior Envelope
03 / Enlarged Wall Section

03 /

01 /

01 /

WALL SECTION MODEL

01 / Hallway
02 / Stairway
03 / Stair Case

02 /

04 / Windows
05 / Exterior
06 / Exterior Envelope

03 /

04 /

05 /

06 /


WALL SECTION MODEL


01 /

02 /

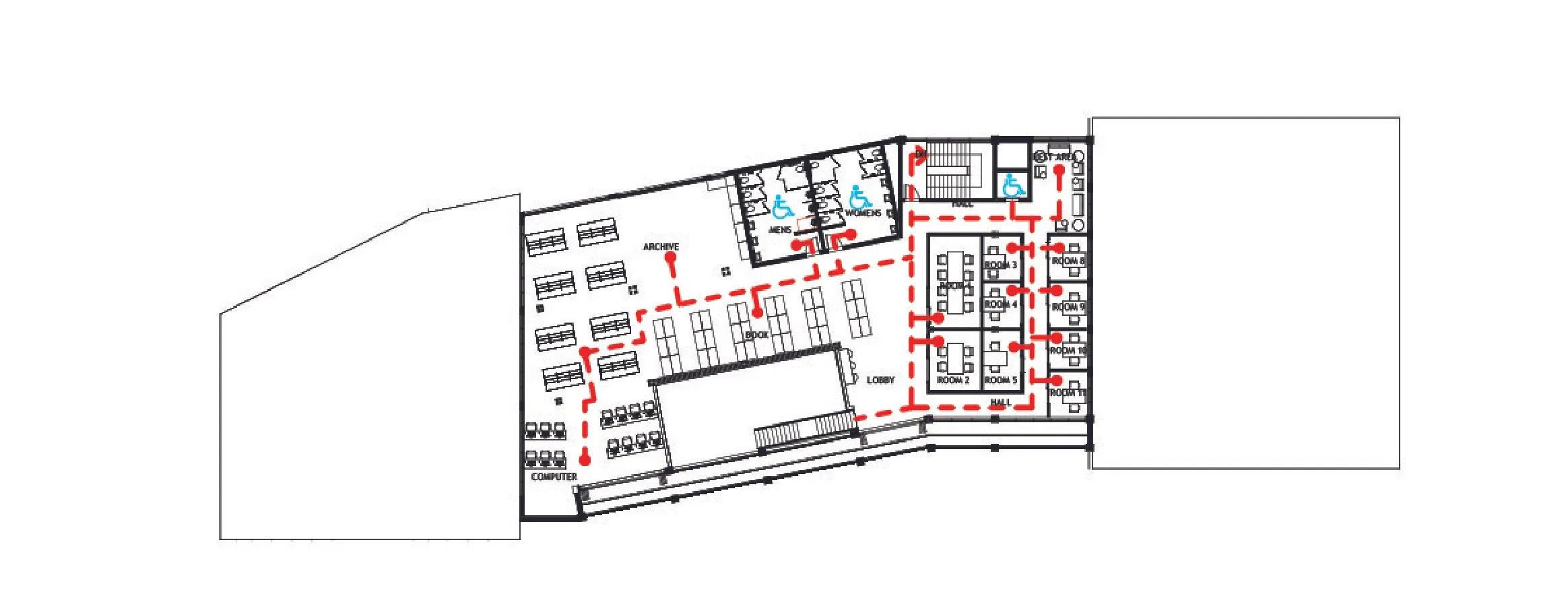
EGRESS DIAGRAM

01 / First Floor Egress Plan
02 / Second Floor Egress Plan
03 / First Floor Egress Plan

03 /


OVERALL CIRCULATION DIAGRAM


01 /

02 /

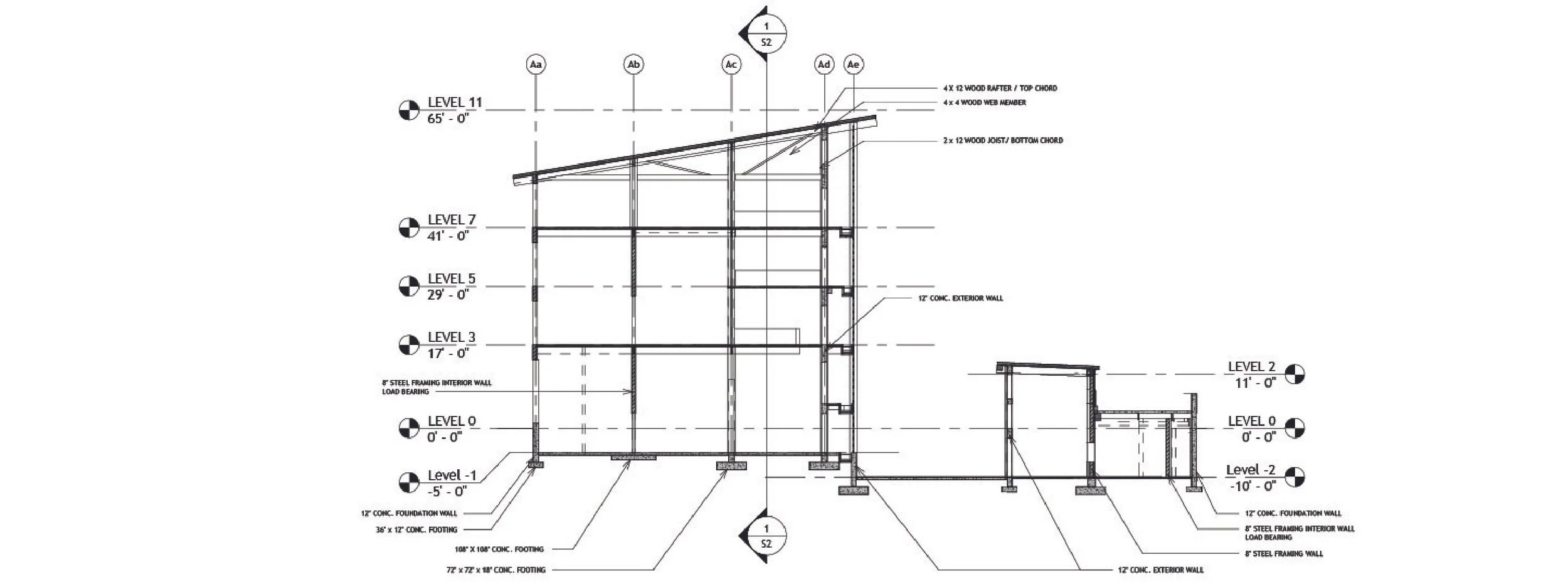
STRUCTURAL DESIGN

01 / Structural Assembly
02 / Structural Building Section 01
03 / Structural Building Section 02
04 / Structural Building Section 03

03 /

04 /


Renderings

01 / Rendering 01
02 / Rendering 02
03 / Rendering 03

01 /

02 /

03 /