FIRM erstad Architects

LOCATION 101 South 27th Street, Boise, Idaho.

PROGRAM Office Tenant Improvement Project

YEAR 2022

SQUARE FEET 17,160 Sq. Ft.

STORIES 2 Stories

POSITION Architecture in Training

ROLE 3D Renderings / Interior Assistance / Drafter

SOFTWARE Revit / Lumion / Photoshop

PHASE Design Development
Construction Document

11/07

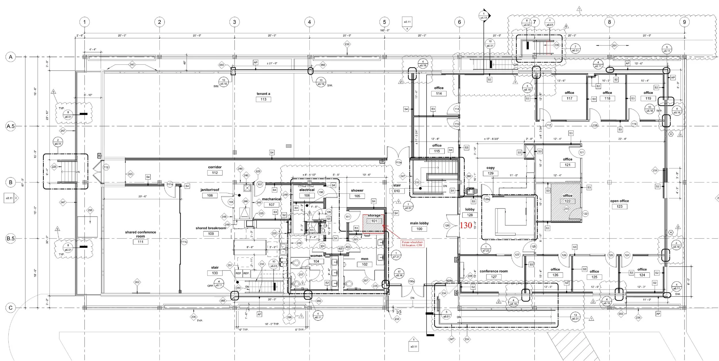
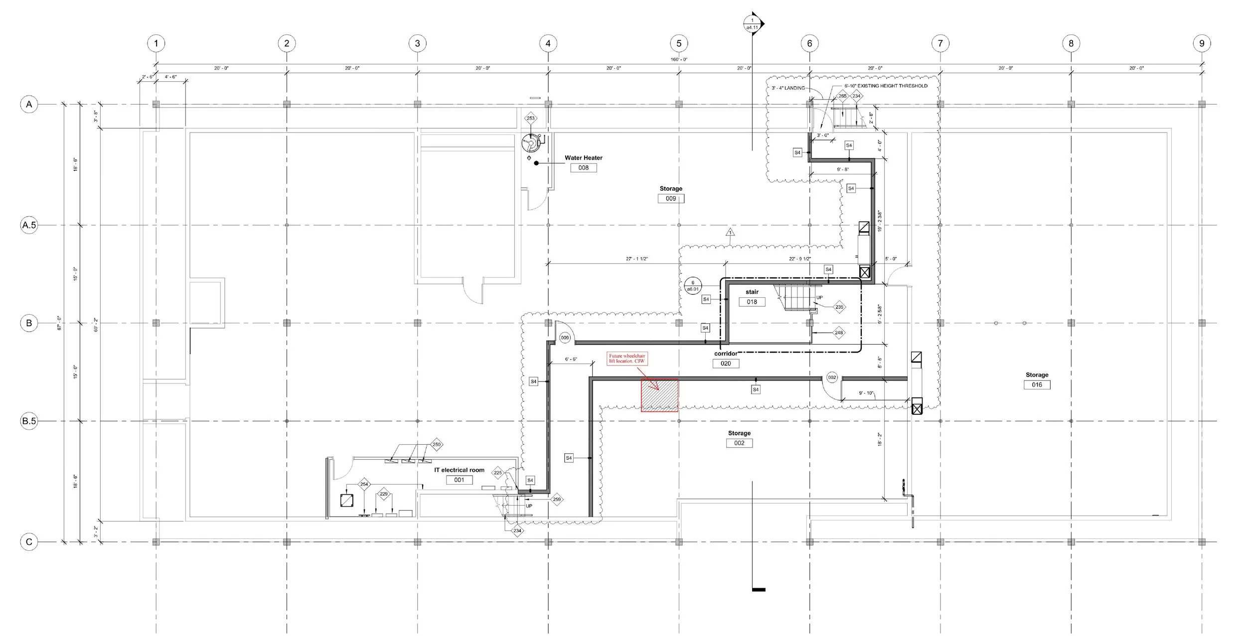
101 South 27th Street Tenant Improvement

Transforming existing space.

DESCRIPTION

Tenant improvement project of an existing 2 level office space for new tenants. Project to include removal of walls. Project to include removal of walls. All electrical and all HVAC to create new common areas, new ADA restrooms, new shared break rooms, conference and new tenant spaces. One stair to be relocated. All new HVAC, electrical and lighting.

FLOOR PLANS

01 / First Floor Plan
02 / Underground Floor Plan

02 /

01 /


RENDERING TO COMPLETION

01 / North Exterior Rendering
02 / North east Rendering
03 / Mian Entrance Completion
04 / Lobby Completion

01 /

03 /

02 /

04 /